Обяви За нас Контакти
Продава 3-СТАЕН
град София, Овча купел 2
195 000 €
381 386.85 лв.

(1 912 €, 3 739.55 лв./m2)
Цената е с включено ДДС
История на цената
Публикувана в 14:44 на 3 ноември, 2025 год.
Обявата е посетена 84 пъти.
Площ:
102 m2
Етаж:
2-ри от 5
ТEЦ:
ДА
Строителство:
Тухла, Ще бъде въведен в експлоатация 2027 г.

Описание на имота:


Предлагаме за продажба тристен апартамент в модерен затворен комплекс в югозападната част на София, ж.к. Овча купел 2, само на 300 м от метростанция Горна баня .
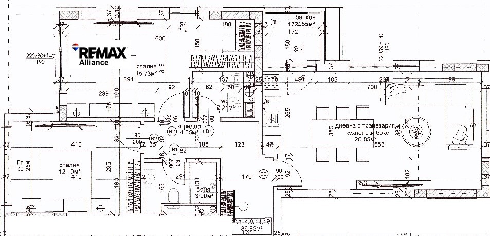
Жилището се намира на втори (надгаражен) етаж от пететажна сгрда и разполага с обща площ 102.44 кв.м. (чиста 89.63 кв.м.).
Разпределение:
Коридор - 4.35 кв.м.
дневна с кухненски бокс 26.05 кв.м.
спалня 12.10 кв.м.
Спалня - 15.73 кв.м.
баня 3.20 кв.м.
Тоалетна - 2.21 кв.м.
балкон 2.55 кв.м.
Изложение - юг, изток и север.
Комплексът се състои от седем сгради с асансьор и гаражи, проектирани с акцент върху енергийна ефективност, шумо- и топлоизолация.
Апартаментите са с функционални разпределения и правилни форми, предават се на шпакловка и замазка, с блиндирани входни врати и изводи за климатици. Отоплението е на ТЕЦ.
В рамките на проекта е предвиден озеленен парк от 10 дка. с детска площадка, който ще създаде усещане за спокойствие и завършена жилищна среда.
Краен срок за пускне в есплоатация 07.2026 г.
В близост се намират хипермаркетите Lidl и Billa, болница Доверие (1 км.), детска градина 163 (2.2 км.), 53-то основно училище Николай Хрелников (2.8 км), Нов Български Университет (3 км.), спирка на автобуси 102, 11, 60, 73 (425 м), както и нови градски удобства, които правят локацията подходяща както за живеене, така и за инвестиция с отличен потенциал за отдаване под наем.
В сградата се предлагат и двустайнии четиристайни апартаменти.
Цена - 195 000 евро.

Виж всички обяви в remaxall01042024.bazar.bg или тук
Особености
Тухла
Асансьор
Видео наблюдение
Контрол на достъпа
Охрана
В затворен комплекс
За контакт:
0876100107
Брокер:
Петър Николов
+359 876 100 107
Офис: RE/MAX Alliance
Още оферти от брокера: Продава | Дава под наем | Купува | Наема
Агенция:
РЕМАКС АЛИАНС
0888641919
РЕМАКС АЛИАНС logo
В imot.bg от 2024 г.
remaxall01042024.imot.bg
Адрес:
област София, гр. София, бул. Александър Стамболийски 108
ИЗПРАТИ ЗАПИТВАНЕ
ИЗПРАТИ ЗАПИТВАНЕТО

Продава 3-СТАЕН
град София, Овча купел 2
Обява: 1c176217384397374

195 000 €
381 386.85 лв.
История на цената
(1 912 €, 3 739.55 лв./m2)

Цената е с включено ДДС
ЗАПАЗИ ОБЯВАТА

Местоположение: град София, Овча купел 2

Допълнителни данни за имотите в района и сравнение с други райони: Търсене в АРХИВ 2013 - 2025 г.











Добави/редактирай
вид имот и район
*Средните цени са определени чрез медиана стойност.