remaxall01042024.imot.bg Обяви 0 За нас Контакти
Продава 3-СТАЕН
град София, Люлин 10
198 000 €
387 254.34 лв.

(1 752 €, 3 426.61 лв./m2)
Цената е с включено ДДС
История на цената
Публикувана в 12:55 на 24 април, 2026 год.
Обявата е посетена 109 пъти.
Площ:
113 m2
Етаж:
4-ти от 7
Строителство:
Тухла, Ще бъде въведен в експлоатация 2027 г.

Описание на имота:


Без комисиона от купувача! Продава се тристаен апартамент на етап изкоп в Люлин 10, непосредствено до Орион, на втора линия от бул. Европа. Срок на завършване септември 2027 г.
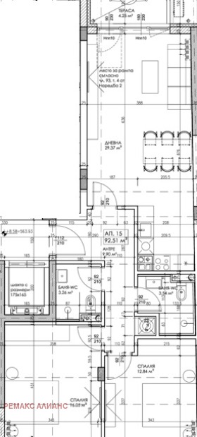
Апартаментът се намира на четвърти, непоследен етаж, с чиста площ 92,51 кв. м, а с общите части 112,72 кв. м.
Има следното разпределение дневна с кухненски бокс 29.37 кв. м, спалня 16 кв. м, втора спалня - 12.84, баня с тоалетна 3.54 кв. м, втора баня с тоалетна 3.26 кв.м., балкон 4.25 кв. м. и антре 9.90 кв. м. Към апартамента има и мазе 3 кв.м.
Сградата се изгражда с висок клас материали и съгласно съвременните строителни стандарти. Монолитна стоманобетонна конструкция с осигурена сеизмична устойчивост, топло-, хидро- и шумоизолации. Инсталации с доказани материали от утвърдени производители.
Апартаментите са с френски прозорци и качествена дограма с петкамерен профил и нискоемисионни стъкла. Отопление на ток (климатици). Сградата разполага с просторен и тих асансьор и представителни общи части с настилки от естествен гранит.
Локацията предполага бърз достъп до основни пътни артерии, спирки на градски транспорт и метро, болници, училище, две детски градини и хипермаркети.
Медицински център 50 метра.
Спирка на автобуси 108, 82, 309, X43 100 метра.
Супермаркет Била 250 метра.
Парк 350 метра.
37 СУ Райна Княгиня 380 метра.
95-та детска градина Омайниче 400 метра.
Метростанция Западен парк 900 метра.
Цена: 198 000 с ДДС.
В сградата се продават двустаен апартамент 150 000 евро и други тристайни апартаменти на цени 196 000 200 000 евро.

Особености
Тухла
Асансьор
За контакт:
0876100107
Брокер:
Петър Николов
+359 876 100 107
Офис: RE/MAX Alliance
Още оферти от брокера: Продава | Дава под наем | Купува | Наема
Агенция:
РЕМАКС АЛИАНС
0877747242
РЕМАКС АЛИАНС logo
В imot.bg от 2024 г.
remaxall01042024.imot.bg
Адрес:
област София, гр. София, бул. Александър Стамболийски 108
ИЗПРАТИ ЗАПИТВАНЕ
ИЗПРАТИ ЗАПИТВАНЕТО

Продава 3-СТАЕН
град София, Люлин 10
Обява: 1c177702452345489

198 000 €
387 254.34 лв.
История на цената
(1 752 €, 3 426.61 лв./m2)

Цената е с включено ДДС
ЗАПАЗИ ОБЯВАТА

Местоположение: град София, Люлин 10

Допълнителни данни за имотите в района и сравнение с други райони

Покажи

Период

и 4 месеца

* Средните цени са определени чрез медианна стойност